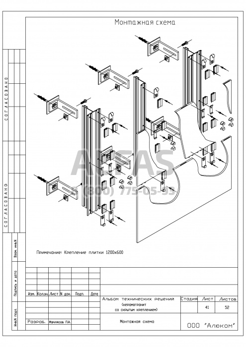
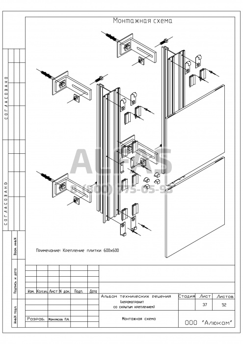
Alucom SKG – алюминиевая подоблицовочная конструкция, выполненная из сплава А6063 Т6, обеспечиваемый диапазон регулировки относа от стены от 100 мм до 320мм. В качестве облицовки используются плиты из керамического гранита в диапазоне толщин 10-12мм. Крепление осуществляется скрытым способом при помощи поворотного кляммера, изготовленного из нержавеющей стали 12Х18Н10Т. Кляммер входит в специальный паз в торце плиты керамогранита и фиксирует его.